Torreviejan vuosikausiin merkittävin rakennushanke käynnistynyt
Torreviejaan La Hoyan alueelle rakennettavan asuinalueen ensimmäinen rakennusvaihe on käynnistynyt. Ensimmäisen rakennusvaiheen on määrä valmistua noin vuoden kuluttua.
Yhteensä La Hoyan alueelle on suunniteltu rakennettavan noin 7500 asuntoa. Aluelle rakennetaan myös liiketiloja josta ainakin Bauhaus on jo varannut tilat itselleen.
Alueen pääkehittäjät Corpic, TM Grupo Inmobiliario ja Eurovillas omistavat yhteensä 80% hankkeen kehittämistä varten perustetusta yhteenliittymästä. Loput omistajat ovat mukana pienemmillä osuuksilla.
Rakennustöistä vastaavat tässä vaiheessa yhtiöt Grupo Bertolín- ja Eiffage España. Ensimmäisen rakennusvaiheen budjetiksi on ilmoitettu 60 miljoonaa euroa.
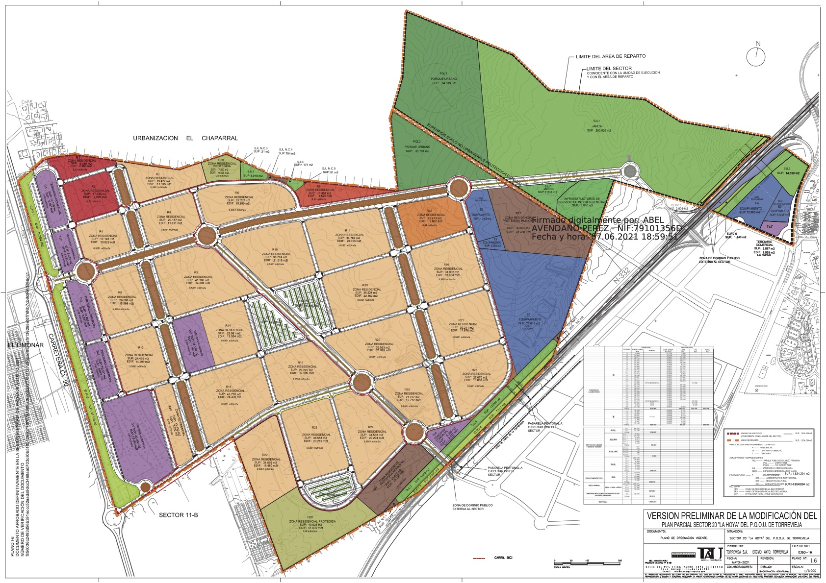
La Joyan alue (sector 20 -nimellä kaavoituksessa) sijaitsee CV-90 ja N-332 -teiden välissä ja ylettyy La Matan luonnonpuistoon pohjoisessa ja etelässä Jardin del Mar -asuinalueeseen.

Viheraluille on varattu alueelta noin viidennes yhteensä 1,8 neliökilometrin pinta-alasta, eli noin 35 hehtaaria.
Alueelle rakennettavista asunnoista noin neljännes on sosiaalista asuntotuotantoa, tämä oli yhtenä ehtona lupien myöntämiselle.
Alue on merkittävin rakennushanke Torreviejassa vuosikausiin. Myös työpaikkoja odotetaan muodostuvan runsaasti, esimerkiksi Bauhaus on ilmoittanut alustavasti työllistävänsä 150 henkilö.
Hankkeet kehittäjät ovat sitoutuneet suojelemaan ympäristöä varmistaen asuinalueen yhteensopivuuden ympäröivän luonnon kanssa. Asuinalueen lähellä olevalla luonnonsuojelualueella muun muassa pesii paljon lintuja.

